案例单位:广州市建筑集团有限公司
《住房和城乡建设部 中央网信办 科技部 工业和信息化部 人力资源社会保障部 商务部 银保监会关于加快推进新型城市基础设施建设的指导意见》(建改发〔2020〕73号)出台以来,各地积极落实加强新基建和新型城镇化建设相关决策部署。广州成为首批新型城市基础设施建设试点城市以来,率先印发《关于加快推进广州市新型城市基础设施建设的实施方案通知》(穗府办函〔2020〕99号),强化项目引领和示范带动,成效显著。
广州市建筑集团有限公司积极响应新城建试点工作,积极落实《广州市城市信息模型(CIM)平台建设试点工作方案》和《“穗智管”城市运行管理中枢建设工作方案》要求,在项目建设中推进装配式建筑,以科技引领智能建造,取得一定成效。
一、基本情况
广州建筑湾区智造科技有限公司(下称:湾区智造)是世界500强大型国有企业广州市建筑集团有限公司旗下专门从事装配式建筑方案设计、产品开发、智能制造、装配施工、运营维护等项目全生命周期解决方案和以装配式建筑为代表的新型建筑工业化全过程解决方案的二级企业。湾区智造是广东省装配式建筑产业基地、广东省产教融合型企业、广州市“链长制”工作示范企业,通过了ISO及香港品质局QSPSC等体系认证。湾区智造拥有目前唯一一个由住建部与香港建造业议会联合授予的粤港澳大湾区绿色建造科技创新展示平台,入选广东省智能建造新技术新产品创新服务案例,同时也是广州开发区入选全国首批绿色产业示范基地的重要组成部分。

湾区智造投入使用的广州黄埔基地占地面积约11万平方米,总建筑面积约4万平方米(不含室外堆场),拥有7条工业4.0标准的专业生产线,PC部品部件设计年产能约20万立方米,近两年生产的PC部品部件已累计应用到了超过300万平方米的境内外装配式建筑及市政工程之中。除投入使用的黄埔基地外尚有多处基地正在积极推进之中,其中占地面积达150亩的清远基地正在开工建设。


湾区智造将科技创新与工程实践深度融合,年营收增长超过了270%,在服务境内市场的同时顺利进入了香港市场,取得了显著的社会与经济效益。此外,湾区智造积极承担社会责任,定期开展援疆援藏装配式建筑技术培训,组织粤港澳大湾区工程科技考察交流,促进产业发展。湾区智造通过“做强做优做大”以及产业“数字化、绿色化、国际化”实现了企业高质量可持续发展。
二、建设内容
湾区智造紧密围绕着装配式建筑PC部品部件智能制造与建筑工业化协同发展等新型城市基础设施建设领域开展技术研发与工程实践,在智能制造、体系研发、信息化应用、科技创新与基地建设等方面着重开展相关工作,并取得了一定的成效。
(一)智能制造
PC部品部件生产是湾区智造的主营业务之一,为实现PC部品部件智能制造的目标,湾区智造在钢筋加工与部品部件制造等过程中设置了多种智能装备,以提升PC部品部件生产效率及品质。
1、钢筋智能加工。在钢筋加工方面,湾区智造配置有数控智能钢筋桁架焊接机、数控智能钢筋弯箍机、数控智能钢筋网片机三大钢筋数控智能生产设备。钢筋加工全面实现全伺服控制,调制、定位、送给精度稳定可靠。上述设备实现了钢筋一次成型,提高了钢筋利用率和生产效率,并可满足多种焊接规范要求,且参数调整方便、快捷,保证设备安全连续生产。


三大钢筋数控智能生产设备全集成控制,手动触控操作,在设置生产任务及输入图纸数据后,可一键启动生产,同时能与计算机控制、生产管理系统共享互连。
2、部品部件智能制造。湾区智造PC部品部件预制生产过程中实现了流水线智能制造,2条自动化生产线主要生产预制叠合板、预制墙板等部品部件。通过中央集成控制系统对各工位进行智能调度,实现生产工况中不同工位流水作业。流水线中主要智能装备包括:模台自动清理机器人、模台自动划线机器人、模具安装机器人、钢筋及预埋件安装机器人、混凝土自动浇筑及振捣装备、自动养护仓等。通过智能化装备与信息化技术,湾区智造实现PC部品部件智能制造的同时提升了生产效率与品质稳定性,减少了人工需求。



(二)体系研发。
结合装配式建筑行业的发展现状及企业自身发展的需求,湾区智造大力开展装配式建筑技术体系研发工作,已初步形成了具有岭南特色的广州建筑装配式混凝土建筑技术、装配式钢混组合建筑技术、装配式混凝土模块化建筑技术等体系,并已在多个重点项目中落地应用,引领企业转型升级的同时带动了装配式建筑行业高质量发展。
1、装配式混凝土建筑技术。采用灌浆套筒、牛担板、一笔箍与湿式连接,湾区智造形成了具有岭南特色的广州建筑装配式混凝土建筑技术体系,确保了装配式建筑整体性能与建造效率的同时减少了人工需求、措施费用,并提升了材料利用效率,该技术已在华南地区规模化应用,取得了显著的社会和经济效益。

2、装配式钢混组合建筑技术。在钢筋灌浆套筒等常规连接技术的基础上,湾区智造提出了以型钢作为装配式混凝土结构中梁、柱等预制构件节点的连接方式,实现“强节点”设计理念的同时提升了装配式建筑的品质与施工效率,对于装配式建筑的发展益处良多。该技术已在华南地区大面积应用,典型代表如华南理工大学广州国际校区一期EPC项目,该项目获得了广东省建设工程金匠奖、广东省建设工程优质奖、广东省装配式建筑示范项目、广东省土木工程詹天佑故乡杯等荣誉。


3、装配式混凝土模块化建筑技术。现阶段我国装配式建筑以“三板装配”模式为主,较难充分展现出装配建筑施工效率等方面的优势,且标准化程度不高。湾区智造结合技术研发与工程实践积累的丰富经验,提出以建筑功能单元作为独立的结构模块在工厂内整体预制的装配式混凝土模块化建筑。总装过程包含设备、装饰等相关工序,,完成验收后运输到施工现场,通过叠合的连接方式在现场拼装而成。该技术对于提升建筑品质及降低成本、节约工期等多个方面均有着明显的优势,可更为充分的展现出装配式建筑品质高、工期省、人工少等特点,是装配式建筑向高级阶段发展的方向之一。
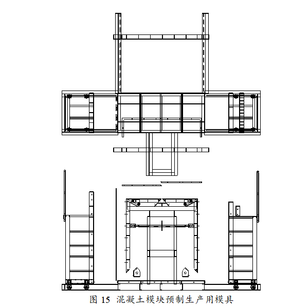
针对以上技术,湾区智造设计了如图14所示的2层装配式混凝土模块化建筑样板间,通过3D打印验证了该技术体系,同时设计了如图15所示的混凝土模块预制生产用模具,可实现结构模块整体预制。完成结构预制及预拼装的样板间如图16所示,该技术正在香港某超高层商住项目中落地应用。



(三)信息化应用
PC部品部件预制过程中除需完成与现浇模式相近的常规作业外,尚需在预制过程中综合考量节点设置、预留钢筋、预埋铁件、设备管线、内外饰面等工作,因而PC部品部件预制生产过程中包含的信息量更为庞大,而预制生产前置往往导致问题发现后置,这种信息不对称的存在导致施工过程中各类相关问题频繁出现。
为解决以上难点,湾区智造大力开展以DFMA+BIM技术为代表的信息技术研究与应用,以提升PC部品部件生产效率与品质。在提升以上生产施工效率的同时,湾区智造积极拓展信息化技术应用场景,在正向设计、生产工艺、产线模拟、安装模拟、倾斜摄影、3D扫描等方面均取得一定成效。
1、服务生产环节。在机场三期、萝岗保障房及赤沙公安大楼等重难点项目深化设计中,湾区智造全面运用DFMA+BIM正向设计技术,使管理者与班组更直观掌握项目信息,大幅度提升了生产效率及实施效果。利用BIM技术可视化特点,湾区智造对较为复杂的项目采用BIM+生产工艺实现PC部品部件预制流程可视化,有效规避了生产过程中遇到的碰撞、错漏等问题。根据工厂生产需求,湾区智造对制约产能提升的重要环节采用DFMA+BIM技术进行模拟,以提供更优的解决方案。通过BIM+产线模拟技术,湾区智造已完成了黄埔生产基地自动产线“双进双出双循环”迭代升级工作,并完成了英德基地立体产线的设计工作。在生产基地堆场拓展方案策划过程中,结合BIM+倾斜摄影技术的特点,湾区智造采用航拍倾斜摄影技术对地形进行场景还原,同时结合3D模拟等技术手段达到“所见即所得”的要求,为决策提供了重要支撑。





2、服务现场施工。对复杂项目在部品部件安装前进行BIM+安装模拟工作,为方案优选提供技术支撑。如东山交警大队分控中心项目临时堆场设置、吊装设备选型、吊装位置确定及起吊重量计算等环节,均采用了BIM+开展相关模拟,在确保安全作业的前提下大幅度提升了现场安装效率。对重难点项目(如装配式电梯项目、赤沙公安大楼项目、模块化建筑项目)采用BIM+3D扫描技术完成部品部件产品三维数字建模,用于技术论证、质量控制、施工模拟等环节,有利于项目前期准备工作顺利开展。

(四)科技创新
1、科研团队。作为科技型企业,湾区智造尤为注重科技创新工作,设立了由20余名装配式建筑领域中青年科技工作者组成的企业技术中心,针对装配式建筑体系、部品部件生产、施工等开展科技研发与工程实践。中心现有教授级高级工程师2人、高级工程师4人、博士2人、硕士2人,其中国家百千万人才工程国家级人选1人,国家有突出贡献中青年专家1人,享受国务院特殊津贴1人,广州市杰出专家1人,全国建筑业企业优秀总工程师1人。
2、科研成果。在技术中心成立1年多的时间内,湾区智造获得10项科技项目立项支持,总研发经费超两千万元;参编国家、广东省与广州市等各级规范12项;通过PCT国际专利审查2件,获得5件发明专利及7件实用新型专利授权;获得1项广东省省级工法及广东省建筑业协会科技奖励1项;发表SCI收录论文3篇,EI收录论文3篇。目前,湾区智造研发的全预制模块化混凝土结构、三维数字交底技术等已成功应用于广州城市更新及香港城市建设项目。
3、产教融合。湾区智造与世界杯压球官方网站联合申报了住房和城乡建设部2022年度科技计划;与澳门大学、华南理工大学、广州城市职业学院等联合申报了广东省科技厅、广东省教育厅、广州市科技局等部门设立的科技计划项目,分别与广东省建设工程绿色与装配式发展协会、广州市建工设计院有限公司达成了战略合作协议;与华南理工大学、广东石油化工学院、广东水利电力职业技术学院、广州城市职业学院、广州东华职业学院等高校签订了校企合作协议,并入选广东省产教融合型企业、广东省智能建造新技术新产品创新服务案例。依托广州建筑集团全产业发展优势,湾区智造与集团内部股份公司、机施集团、总承包、建材集团、机安、装饰集团、金博集团等单位开展了密切合作,通过带动政、产、学、研多方联动,促进装配式建筑行业高质量发展。
(五)基地建设
为推动装配式建筑行业发展,服务粤港澳大湾区建设,湾区智造以广州为核心,在积极规划建设PC部品部件生产基地。2023年在广东完成不少于1处生产基地建设,实现年产能达30万立方米的目标;2025年在广东完成不少于4处生产基地建设,实现年产能达100万立方米的目标。2022年,湾区智造将完成模块化建筑生产基地建设,且同步进行清远英德基地建设,并力争2023年英德基地投入使用。