
近日,由广东省住房和城乡建设厅指导,广东省建设工程绿色和装配式发展协会主办的首届广东省装配式农房设计大赛颁奖仪式在广州保利世贸博览馆举行。广州市城市更新规划设计研究院有限公司(下称广州更新院)报送的作品《秀美岭南,诗意新居》荣获大赛广府组别三等奖和人气奖。
方案设计亮点
《秀美岭南,诗意新居》方案项目选址位于广州市从化区良口镇良平村村口处的一块空地,地处丘陵地带,但地势平坦且背山面田,环境条件优越。

(项目整体鸟瞰图)
1.打造多元邻里关系。设计通过不同宅基地面积单体的组合,形成多元邻里关系,同时规划“看山望田”的视线通廊,充分利用景观资源,将自然引入场地,建筑造型错落有致,形成山水相承的多元聚落。

(项目总平面图)
2.精细功能空间布局。方案重视户型设计,延续传统广东民居以“间”作为基本单位,由“间”组成“屋”,由“屋”围住天井组成“院落”的布局组织各功能空间,借鉴“明字屋”双开间、内天井的特点,形成具有灵活开间、多重天井的现代化岭南特色农房户型。

(明字屋两大布局)
3.注重以人为本理念。设计关注人的需求,提供尺度、功能各不相同的庭院空间,以满足农房不同的使用场景。同时得益于双开间及结构柱较少的优势,可灵活布置隔墙,既能很好地满足各种宅基地的面积需求,满足一个家庭各个生命周期的生活需求,也适合于装配式设计与大规模推广。

(户型生成分析图)
4.新旧融合保留特色。整体风格以简约为主,融入传统广府民居中的山墙、满洲窗、花窗等特有元素,营造出具有广州地域特色的现代岭南建筑,传承和弘扬岭南文化。

(传统文化演绎)

(农房组团低点透视图)
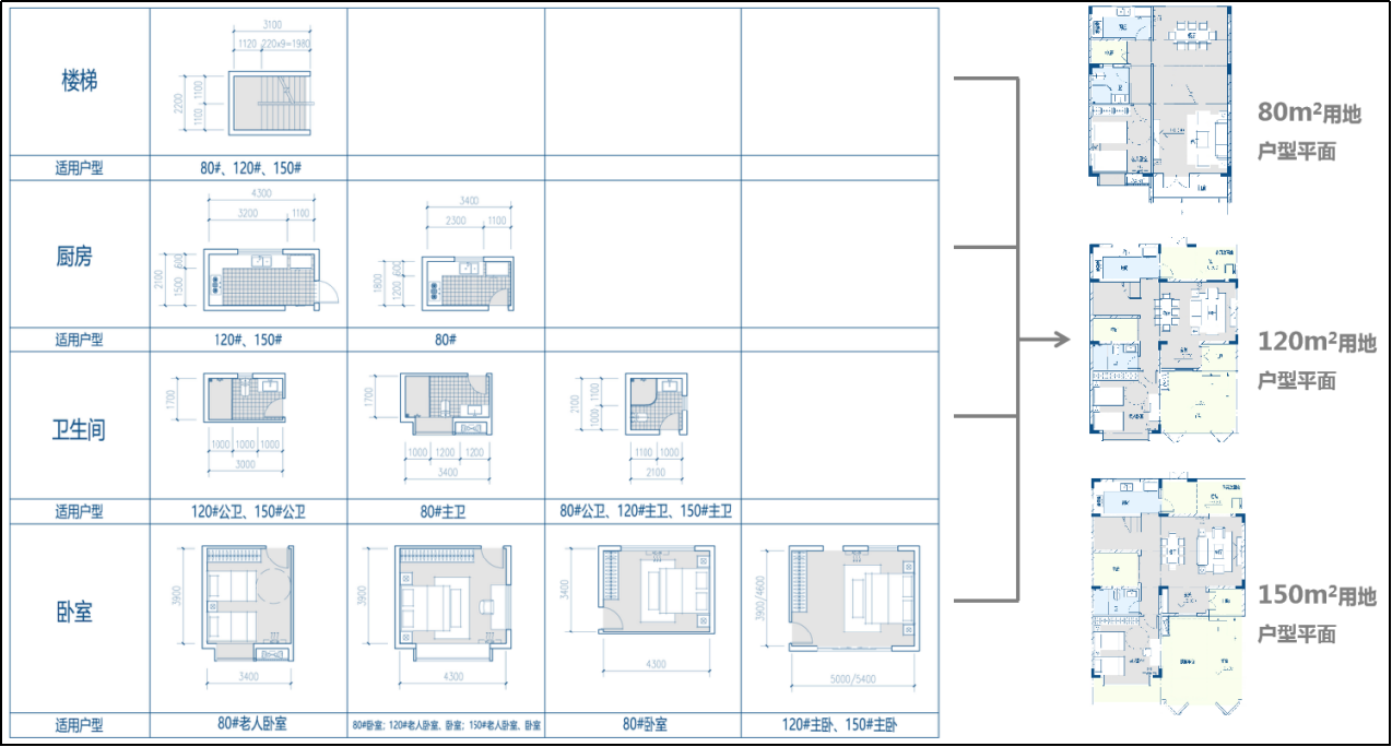
5.标准化装配式设计。采用标准预制构件,形成完整的装配式建筑建造系统,实现装配式建筑标准化、模数化设计,打造有细节、有特色、有温度的绿色居住农房。

(立面构件与预制构件标准化设计示意图)
首届广东省装配式农房设计大赛以“装配式农房绘就百县千镇万村新画卷”为主题,共设广府民系、潮汕民系、客家民系、既有民居整治四个组别。大赛共收到省内外63家设计单位、近700名设计师提交的74份作品,参与大赛网络投票的人数超过500万。大赛获奖作品将汇编成《首届广东省装配式农房设计大赛作品集》,印发各地推广使用。
广州更新院作为广州较早开展保障性住房、城镇安置房和村民安置房研究与设计的技术单位,在装配式建筑、安居工程设计、危破房改造、农房建设等领域形成了技术优势和经验积累。广州更新院将继续积极推广新型建造方式,推动农房质量安全、建设水平和农房风貌的持续提升,为推进“百千万工程”高质量发展和群众“住有宜居”贡献力量。
主办单位:世界杯压球承办单位:世界杯压球官方网站
Copyright © 1996至今世界杯压球官方网站 保留所有权利
网站标识码:4401000085工信部备案:粤ICP备09161546号-10
粤公网安备:44010402000417
IE9.0以上版本浏览器 最佳分辨率:1920x1080
总访问量:-人次

